Retreat without traveling.
Restore your body and mind at home

Retreat without traveling.
Restore your body and mind at home

WHAT IS

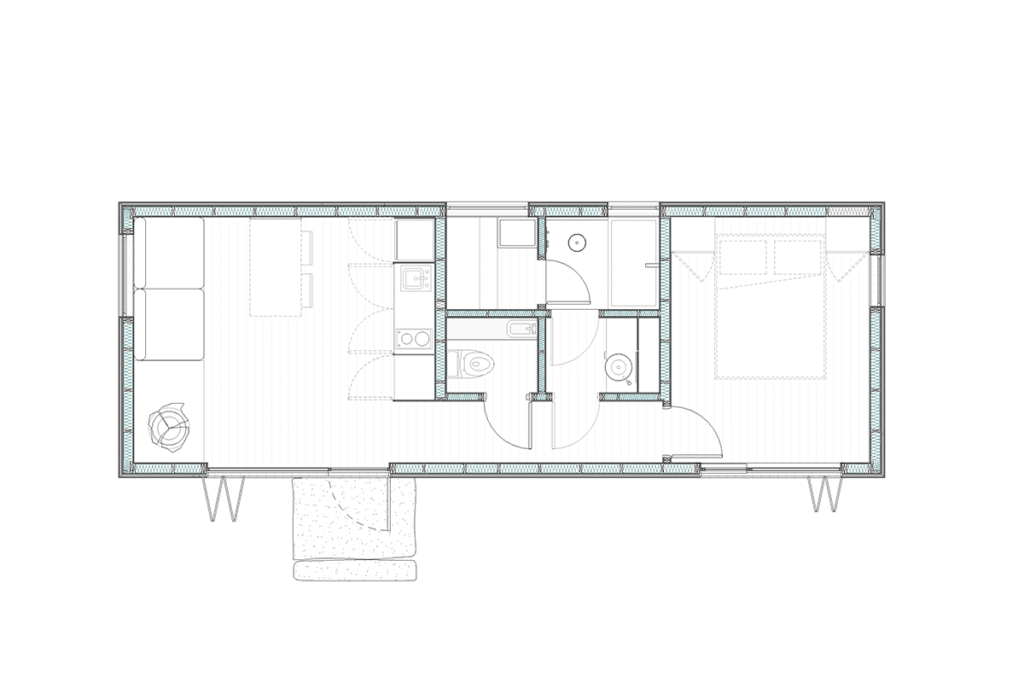
ROMA is a 432-square-foot, artist-designed wellness cabin that turns your backyard into an elegant, private retreat for relaxation, focus, and renewal. The Scandinavian-inspired layout pairs minimalist design with warm, natural materials, filling the space with daylight and a spa-like area for calm. Thoughtfully crafted for multigenerational living, ideal for families, guests, or a personal escape, ROMA’s innovative ground-screw foundation installs swiftly with minimal disruption, preserving your landscape and reducing environmental impact. As a wise investment, ROMA delivers more flexibility and potential income than a traditional addition, while adding enduring value for years to come.
Signature model
Let´s build your ROMA

A private wellness sanctuary
designed with intention, built with precision, crafted for life.

A private wellness sanctuary
designed with intention, built with precision, crafted for life.

Transform unused land
into your greatest asset.

Crafts and materials
THE ROMA PROCESS

AWAKENING: PROJECT PREPARATION "YOUR WELLNESS JOURNEY BEGINS HERE"

Before design begins, we thoroughly assess your property to confirm it’s the right fit for ROMA. This upfront analysis provides a clear understanding of your site’s possibilities, limitations, and the most effective path forward—so you can move ahead with confidence and avoid any surprises.

FOUNDATION: SCHEMATIC DESIGN"GROUNDING THE VISION IN REALITY"

In this phase, we translate your vision into a tangible, wellness-focused plan for your ROMA ADU. Together, we’ll study how the space can best serve your life—whether as a private retreat for recovery, a refined guest suite, or a source of premium rental income—while keeping comfort, privacy, and holistic well-being at the center of every decision. Through site-specific studies, preliminary layouts, and early financial modeling, we’ll define a clear concept that fits your property, your budget, and your long-term goals, so you can move forward with confidence.

FLOW: ZONING & PERMIT APPROVALS "GUIDING YOUR PROJECT FROM PLAN TO POSSIBILITY"

Each town’s planning office operates with its own distinct requirements and processes. We handle the preparation of all essential documentation and guide your project through permitting and entitlement with expertise. Your approved ROMA design becomes a complete, permit-ready package—every detail carefully managed to ensure it aligns with your vision, meets your budget, and exemplifies the ROMA standard of quality.

PEACE OF MIND: PROJECT EXECUTION "SHAPING SANCTUARY WITH THE RIGHT PEOPLE IN PLACE"

ROMA manages every aspect of turning your design concept into reality—from preparing all required drawing sets to assembling a trusted build team. We transform your approved design into a comprehensive, permit-ready package, connect you with the ideal builder, and provide expert guidance through the early stages of construction. Throughout the process, we ensure every detail aligns with your vision, respects your budget, and meets the ROMA standard of quality.
-
PHASE 1
AWAKENING: PROJECT PREPARATION
YOUR WELLNESS JOURNEY BEGINS HERE
+
PHASE 2
FOUNDATION: SCHEMATIC DESIGN
GROUNDING THE VISION IN REALITY
+
PHASE 3
FLOW: ZONING & PERMIT APPROVALS
GUIDING YOUR PROJECT FROM PLAN TO POSSIBILITY
+
PHASE 4
PEACE OF MIND: PROJECT EXECUTION
SHAPING YOUR SANCTUARY WITH THE RIGHT PEOPLE IN PLACE

Before design begins, we thoroughly assess your property to confirm it’s the right fit for ROMA. This upfront analysis provides a clear understanding of your site’s possibilities, limitations, and the most effective path forward—so you can move ahead with confidence and avoid any surprises.

In this phase, we translate your vision into a tangible, wellness-focused plan for your ROMA ADU. Together, we’ll study how the space can best serve your life—whether as a private retreat for recovery, a refined guest suite, or a source of premium rental income—while keeping comfort, privacy, and holistic well-being at the center of every decision. Through site-specific studies, preliminary layouts, and early financial modeling, we’ll define a clear concept that fits your property, your budget, and your long-term goals, so you can move forward with confidence.

Each town’s planning office operates with its own distinct requirements and processes. We handle the preparation of all essential documentation and guide your project through permitting and entitlement with expertise. Your approved ROMA design becomes a complete, permit-ready package—every detail carefully managed to ensure it aligns with your vision, meets your budget, and exemplifies the ROMA standard of quality..

ROMA manages every aspect of turning your design concept into reality—from preparing all required drawing sets to assembling a trusted build team. We transform your approved design into a comprehensive, permit-ready package, connect you with the ideal builder, and provide expert guidance through the early stages of construction. Throughout the process, we ensure every detail aligns with your vision, respects your budget, and meets the ROMA standard of quality.

YOUR ROMA READY IN AS LITTLE AS 24 WEEKS
YOUR ROMA READY IN
AS LITTLE AS 24 WEEKS

3–5 Weeks

Project Preparation

Code & Zoning Research
Site Analysis & Siting
Utilities Assessment
Permitting Pathway
Summary of Findings
Cost & Timeline Estimates

2–4 Weeks

Schematic Design

One-Time ROMA Build License
Site-Specific Adaptation
Preliminary Pro Forma

2–4 Weeks

Zoning & Permit Approval

Code Compliance Adjustments
Engineer-Stamped Plans
Permit Submission Support
(Municipal approval timeline varies by town)

2–4 Weeks

Project Execution

Construction Documentation
Build Team Matchmaking
Budget Optimization

15–20 Weeks

Build your ROMA

ROMA Wellness cabin can be built in as little as 12 weeks with most projects completed within 14 to 20 weeks depending on site and material availability.

24–37 Weeks
A Home Spa, perfected:
immerse, unwind,
and emerge renewed.
Contact us:
Leave us your details so we can give you more information.
Project Address (where ADU might be built):